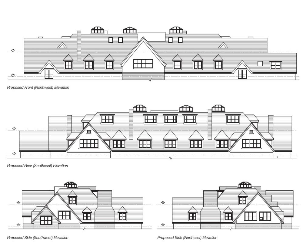
GRADE II LISTED BUILDING CONSENT


Listed Building Consent has been granted for the temporary removal of an existing window and its subsequent reinstatement with a new sill, together with the replacement of roof lanterns, to a sixth-storey apartment within a Grade II listed building in Folkestone.

We are inspired by the people we work with